空氣換熱箱
特點
內置空氣熱回收器,能夠利用污風所攜帶的冷(熱)量對新風進行預冷(熱),有效地降低空調系統中的新風負荷。當新風量較大,其節能優勢得以充分的體現。廣泛用于游泳館、購物中心、地下停車場等處。
KHQ-Z系列空氣換熱箱
性能參數表
型 號 |
額定風量(m3/h) |
熱回收率(%) |
靜壓損失(Pa) |
重量(kg) |
KHQ-2Z |
20000 |
70 |
500 |
1250 |
KHQ-3Z |
30000 |
70 |
500 |
1850 |
KHQ-4Z |
40000 |
70 |
500 |
2450 |
KHQ-5Z |
50000 |
70 |
500 |
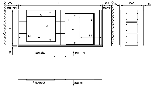
3050 | 外形尺寸圖

型 號 |
L |
H |
L1 |
A |
B |
KHQ-2Z |
2800 |
2345 |
712 |
800 |
2000 |
KHQ-3Z |
3350 |
3200 |
850 |
1000 |
2850 |
KHQ-4Z |
4450 |
3200 |
1075 |
1500 |
2850 |
KHQ-5Z |
5550 |
3200 |
1400 |
2000 |
2850 | |
|